Project: NGUYEN HIEU TU SCHOOL

Projects
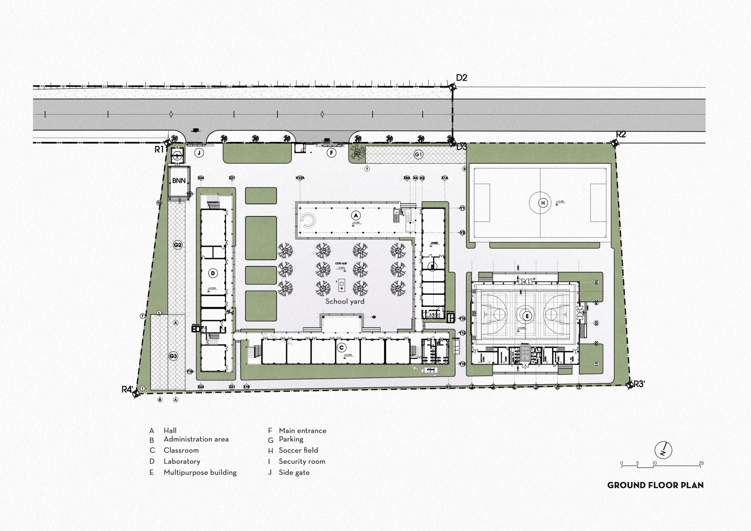
NGUYEN HIEU TU SCHOOL
Year
2023
Company
Apen
Name
Trung Nam Group
Location
Viet Nam

A modern architectural project with soft, flowing forms and terraced green layers, creating a multi-level green space that harmonizes with the urban landscape and promotes environmental sustainability.

Contact Us
Let's discuss your project

Fill out the form and our manager will contact you for consultation.